物件の特徴
主な設備
公営水道
公共下水
都市ガス
システムキッチン
バス
トイレ
トイレ2箇所
室内洗濯機置場
LDK15畳以上
クローゼット
バルコニー
主な特徴
駅まで平坦
小学校徒歩10分以内
2階建
平坦地
フラット35Sに対応
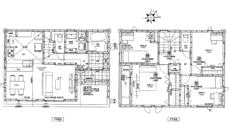
◎約16帖の広々としたLDKは、ご家族が自然と集まりゆったりと寛げる空間
◎約5.29帖の納戸は、お子さまの成長に合わせてお部屋としても使える多目的スペース
◎カップボードを標準で設置し、キッチン横にパントリー付きなのでスッキリ収納できます
◎フラット35Sに対応
◎利便施設も充実した暮らしやすい好立地
◆掲載物件の他にも、ご紹介可能な物件がございます
◆住宅ローンのご相談も承っております
お客様に最適な資金プランをご提案いたします
◆物件に関するご質問やご相談など、お気軽にお問い合わせください
物件概要
| 価格 | 4,380万円 | 間取り | 3LDK+S |
|---|---|---|---|
| 物件種別 | 新築一戸建て | ||
| 所在地 | 広島県広島市南区宇品御幸5丁目 | ||
| アクセス | 広島電鉄宇品線『海岸通』 徒歩5分 (約400m) 『海岸2丁目バス停』 徒歩3分 (約240m) |
||
| 建物面積 | 93.35㎡ | 駐車場 | あり |
| 築年月 | 2025年(令和7年)08月築 | 建築確認 | 第R07認広健セ00008号 |
| 建物構造 | 木造 2階建 | 工法 | |
| 主要採光 | バルコニー | ||
| 保証・評価 | |||
| 土地面積 | 89.85㎡(27.17坪) | 接道 | 東側幅 約4.0m |
| 私道 | セットバック | ||
| 地目 | 宅地 | 地勢 | |
| 権利 | 所有権 |
||
| 都市計画 | 市街化区域 |
用途地域 | 商業 |
| 建ぺい/容積率 | 80% / 400% | 土地国土法 | |
| 許可番号 | 建築基準法 | ||
| 法令制限 | |||
| 小学区 | 宇品小学校 徒歩4分 (約300m) | 中学区 | 宇品中学校 徒歩23分 (約1800m) |
| 現況 | 完工済 | 引渡 | 相談 |
| その他費用 | |||
| 周辺環境 | ローソン・ポプラ宇品海岸店 徒歩4分 (約270m) 広島宇品本通郵便局 徒歩4分 (約320m) ニトリ広島宇品店 徒歩5分 (約330m) 広島銀行 宇品支店 徒歩5分 (約360m) ココカラファイン 宇品テラス店 徒歩6分 (約450m) ホームセンターコーナン 宇品店 徒歩6分 (約440m) 広島市立宇品小学校 徒歩4分 (約300m) フレスタ 宇品店 徒歩8分 (約630m) ゆめタウンみゆき 徒歩9分 (約690m) 広島市立宇品中学校 徒歩23分 (約1800m) |
||
| 備考 | 工法:在来工法 施工:トータテハウジング 外構付 フラット35S使用可能(但し、期限内に限ります) カップボード付き セットバック前土地面積:96.57㎡(29.21坪) 地積更生予定(登記簿96.32㎡) 準防火地域 越境の覚書有 |
||
| 物件番号 | 4686649 | 取引態様 | 媒介 |
























